IN VENDITA

270.000 €

PUNTI CHIAVE:
  • 1 Camere
  • 1 Bagni
  • 45 m2
POSIZIONE:

Via Matteo Civitali 69, Milano

stupendo bilocale super luminoso in zona san siro! da vedere
Descrizione

STUPENDO BILOCALE SUPER LUMINOSO IN ZONA SAN SIRO! DA VEDERE
(Via Matteo Civitali)

Nel tratto più signorile di Via Civitali, a soli 200 metri dalla MM Ippodromo/San Siro, proponiamo questo nuovissimo bilocale appena ristrutturato con materiali di pregio e mai abitato.

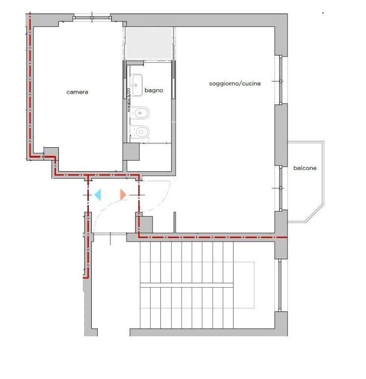
L'appartamento è situato al secondo piano (senza ascensore) di una tranquilla palazzina di soli tre piani ed è circondato dal verde condominiale in un contesto in forte sviluppo oltre che ottimamente servito e collegato, mentre internamente si compone di spazi al tempo stesso eleganti e funzionali: luminoso living con moderna cucina a vista super attrezzata e accesso al grazioso balcone, pratico disimpegno, accogliente camera da letto, ampio bagno completo ed infine due comodi ripostigli, uno in quota e uno attrezzato per lavanderia.

Il tutto appare incredibilmente arioso e silenzioso grazie alla favorevole esposizione solare e agli eccellenti infissi in doppio vetro PVC capaci di assicurare il massimo isolamento termo-acustico, ma non finisce qui!
Tra i numerosi plus dell'immobile possiamo sicuramente citare l'aria condizionata DAIKIN già installata, l'efficiente riscaldamento centralizzato, l'arredo di qualità, le finiture di pregio, e soprattutto la possibilità di acquistare a parte un box singolo nel cortile dello stabile o una grande cantina finestrata al piano seminterrato.

Parliamo dunque di una soluzione ideale non solo ad uso personale ma persino in ottica di investimento! AFFRETTATI A PRENOTARE LA TUA VISITA!


IL PRESENTE ANNUNCIO NON COSTITUISCE ELEMENTO CONTRATTUALE

*Vendi il tuo immobile?*
Contattaci per una valutazione gratuita!
Sapremo consigliarti il metodo migliore per una corretta e veloce vendita.
Affidati sempre a dei veri professionisti!!
SEGUICI SULLE NOSTRE PAGINE SOCIAL DI FACEBOOK E INSTAGRAM: @italhomemilano2
Agenzia Immobiliare: Via G. Washington n.104 - Milano
Telefono 02/84980828
Sul nostro sito Ital-Home Milano2 troverete innumerevoli offerte ed occasioni. VISITATELO! Oppure venite a trovarci in agenzia senza impegno, i nostri orari sono i seguenti: dal Lunedì al Venerdì dalle 9.00 alle 19.00 Il sabato su appuntamento

Panoramica
  • Riferimento: BILO-CIVITALI69
  • Camere: 1 Camere
  • Bagni: 1 Bagni
  • Box: Box Singolo
  • Superficie: 45 m2
  • Del: 1970
Dettagli
ID Interno:
BILO-CIVITALI69
Camere:
1
Prezzo:
€ 270.000
Bagni:
1
Superficie:
45 m2
Costruzione:
1970
Box:
Singolo
Tipo di Proprietà:
Appartamento
Piano:
2 di 3
Stato:
Ristrutturato
Riscaldamento:
Centralizzato
Caratteristiche
  • Giardino Comune
  • Box Singolo
  • Esposizione: SUD - EST - OVEST
Ubicazione
(Ubicazione approsimativa)
Calcola il Mutuo
Rata Mensile: € 1'304,48
Il valore sopra riportato ha solo scopo indicativo ed è variabile in base al singolo Ente finanziatore ed al tasso indicato.
Contatta l'agenzia
avatar
Ital Home Milano 2
02 849.808.28
milano2@ital-home.it
Perchè Scegliere Noi?
  • Acquisti in sicurezza
  • Miglior Prezzo Garantito
  • Consulenza personalizzata
  • Ascolto, dedizione, esperienza
Valuta la Tua Casa

Scopri il vero valore della tua casa o di quella che vuoi acquistare!

Inizia Valutazione
image
In base alla tua ricerca

Potrebbe interessarti

Appartamento a Milano
  • In Vendita
Appartamento

Milano

  • 3
  • 1
  • 80m2
avt
TRILO-FRATTINI
€ 449.000
Appartamento a Milano
  • In Vendita
Appartamento

Milano

  • 2
  • 1
  • 88m2
avt
APP-VALSESIA
€ 315.000
Appartamento a Milano
  • In Vendita
Appartamento

Milano

  • 2
  • 1
  • 35m2
avt
BILO-ARNABOLDI
€ 198.000